Кабельрост Click з покриттям Magnelis DFP100H60/3MC (4661115)

Виробник: BAKS
Артикул: DFP100H60/3MC
Ціна за дзвінком

Прокладання кабельної траси.

Матеріал

MC - сталь з покриттям Mangelis®

Додаткова інформація

– швидкий та легкий монтаж
– система без роз'ємів
– стабільне застібне з’єднання
– драбина зі сходами, що підходить для монтажу кабельних затискачів UK/UKO... та UKP...

– опція E90 для довжин 100 – 400 мм

Характеристики товару

Назва атрибуту Значення атрибуту
Характеристики стандартів
Вогнестійкість Вогнестійкий E-90
Системи кабельних трас
Типи елементів кабельрост
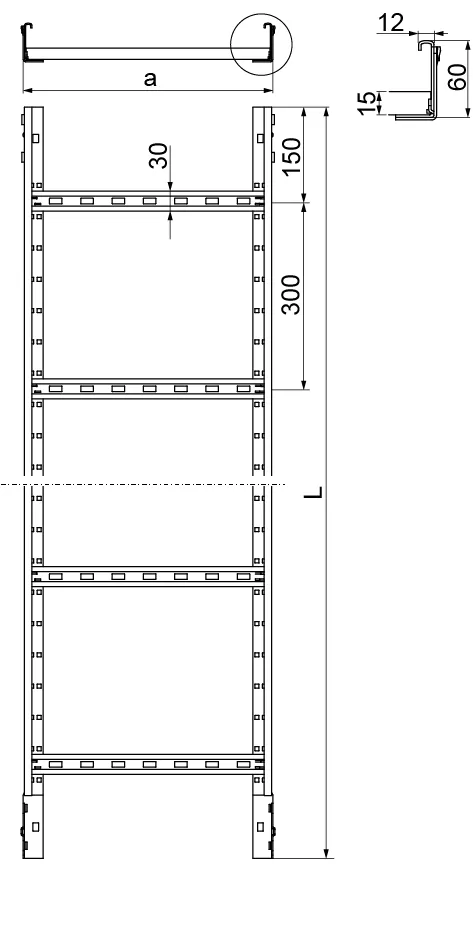
Висота борта H60
Товщина листа 1.5 мм
Монтаж Встановлення без інструментів
Вага 1м [кг] 2.42 kg
Кількість у коробці [шт/м] 2 / 6 pcs. / m.
Ефективна секція 4,200
Довжина L [мм] 3 000 mm
Ширина a [мм] 100