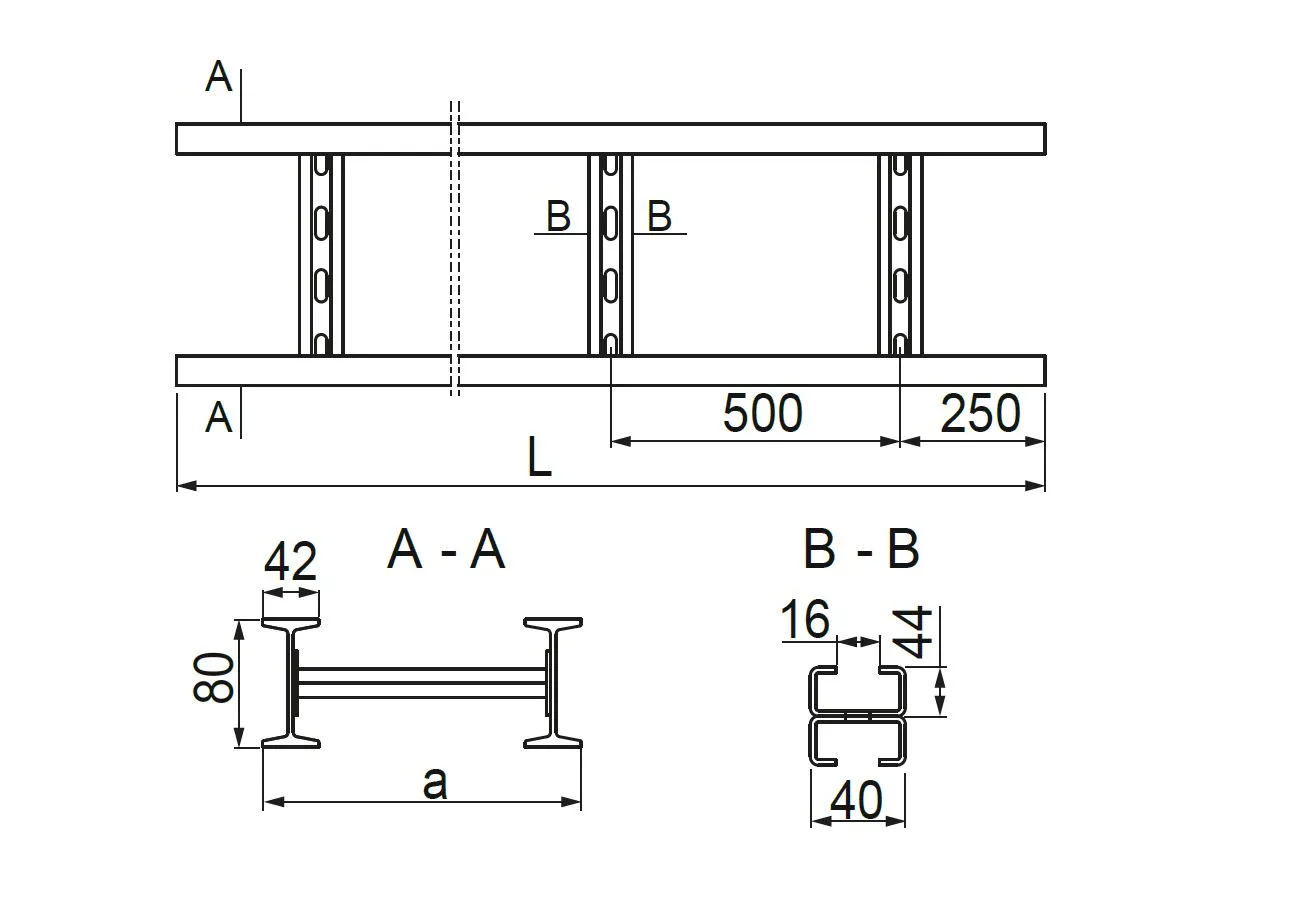
Кабельрост DDH700H80/3 (404270) Виробник: BAKS Артикул: DDH700H80/3 Ціна за дзвінком Кількість: Замовити Індивідуальний список бажань ОК Додати до списку бажань Додати до списку порівняння Повідомити друга Прокладання вертикальної та, за бажанням, горизонтальної кабельної траси. Матеріал S - Сталь, оцинкована методом Сендзіміра PN-EN 10346:2015-09 Доступні варіанти оздоблення: F - гарячеоцинкована сталь PN-EN ISO 1461:2023-02 E - нержавіюча сталь L - фарбування у стандартний колір RAL Додаткова інформація – можливість монтажу кабелів у затискачах UK/UKO... та UKP... з обох боків драбини Характеристики товару Назва атрибуту Значення атрибуту Системи кабельних трас Типи елементів кабельрост Висота борта H80 Товщина листа 0.0 мм Властивості матеріалу S - оцинкована сталь за методом Сендзіміра, F - гарячеоцинкована сталь, E - нержавіюча сталь, L - фарбування в стандартний колір RAL Монтаж Для важких навантажень Вага 1м [кг] 16.54 kg Кількість у коробці [шт/м] 1 / 3 pcs. / m. Довжина L [мм] 3 000 mm Ширина a [мм] 700
Прокладання вертикальної та, за бажанням, горизонтальної кабельної траси. Матеріал S - Сталь, оцинкована методом Сендзіміра PN-EN 10346:2015-09 Доступні варіанти оздоблення: F - гарячеоцинкована сталь PN-EN ISO 1461:2023-02 E - нержавіюча сталь L - фарбування у стандартний колір RAL Додаткова інформація – можливість монтажу кабелів у затискачах UK/UKO... та UKP... з обох боків драбини