Канал настінний (лакований) KS170H100/2 (910117)

Виробник: BAKS
Артикул: KS170H100/2
Ціна за дзвінком

Прокладання електричних, телекомунікаційних та комп'ютерних кабельних трас у приміщеннях.

Матеріал

SCE - електролітично оцинкована сталь PN-EN 10152

Доступні варіанти оздоблення:

L - фарбування у стандартний колір RAL

Характеристики товару

Назва атрибуту Значення атрибуту
Системи кабельних трас
Типи елементів канал
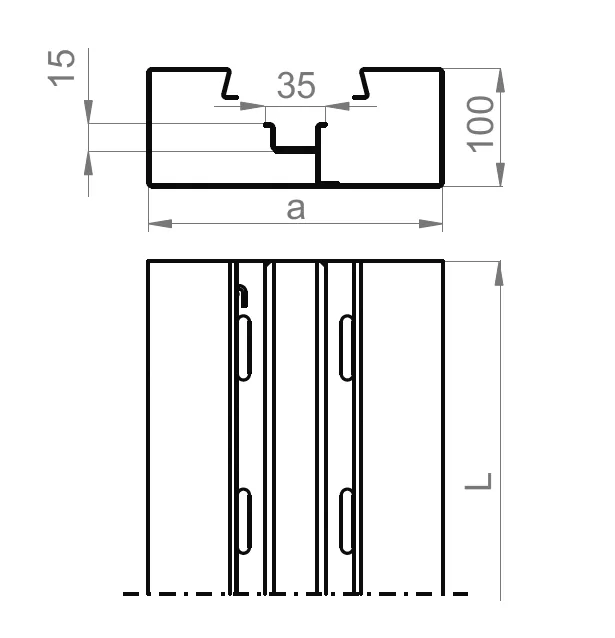
Висота борта H100
Товщина листа 1.0 мм
Властивості матеріалу L - фарбування в стандартний колір RAL
Вага 1м [кг] 3.75 kg
Кількість у коробці [шт/м] 2 / 4 pcs. / m.
Довжина L [мм] 2 000 mm
Ширина a [мм] 170