Лоток кабельний з дротяної сітки KDSZ600H110/3 (912460)

Виробник: BAKS
Артикул: KDSZ600H110/3
Ціна за дзвінком

Маршрутизація кабелю.

Матеріал

G - оцинкований

Доступні варіанти оздоблення:

F - гарячеоцинкована сталь PN-EN ISO 1461:2023-02

L - фарбування у стандартний колір RAL

Додаткова інформація

– інноваційне з’єднання сітчастих лотків

– завдяки високим параметрам міцності матеріалів, що використовуються для виробництва застібок-фіксаторів,

отримано з'єднання, порівнянне з болтовими з'єднаннями – підтверджено випробуваннями

– усі дроти в сітчастих лотках мають фаску, що запобігає пошкодженню кабелів

– кількість нижніх з’єднувачів у лотках шириною: 100-200 мм – 1 шт., 300-600 мм – 2 шт.

Характеристики товару

Назва атрибуту Значення атрибуту
Системи кабельних трас
Типи елементів лоток
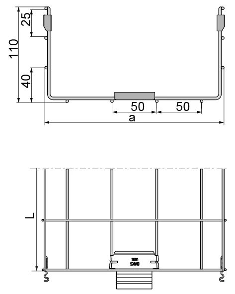
Висота борта H110
Товщина листа 0.0 мм
Властивості матеріалу G - оцинкований, F - гарячеоцинкована сталь, L - фарбування в стандартний колір RAL
Монтаж Швидкий монтаж, Встановлення без інструментів
Вага 1м [кг] 4.15 kg
Кількість у коробці [шт/м] 2 / 6 pcs. / m.
Ефективна секція 59,400
Довжина L [мм] 3 000 mm
Ширина a [мм] 600