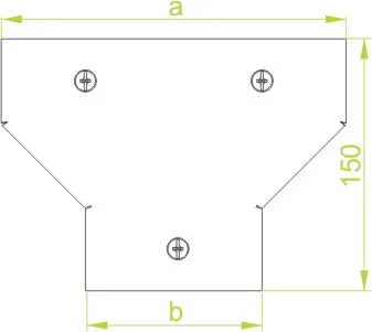
Редуктор симетричний RSKMC600/500H200 (817450) Виробник: BAKS Артикул: RSKMC600/500H200 Ціна за дзвінком Кількість: Замовити Індивідуальний список бажань ОК Додати до списку бажань Додати до списку порівняння Повідомити друга Зменшення/розширення ширини кабельних трас. Матеріал Сталь, оцинкована стрічка згідно з Сендзіміром метод згідно з PN-EN 10346:2015-09 Доступні варіанти оздоблення: F - сталь, гарячеоцинкована. відповідно до PN-EN ISO 1461:2011 E - нержавіюча сталь (SS), клас 1.4301 (AISI304) Додаткова інформація Для монтажу використовуйте прямі з'єднувачі LKM... та комплект гвинтів СГКМ6x14 Характеристики товару Назва атрибуту Значення атрибуту Системи кабельних трас Типи елементів редуктор Висота борта H200 Товщина листа 2.0 мм Вага 1шт [кг] 3.83 Кількість [шт] 2 Розмір a [мм] 600 Розмір b [мм] 500
Зменшення/розширення ширини кабельних трас. Матеріал Сталь, оцинкована стрічка згідно з Сендзіміром метод згідно з PN-EN 10346:2015-09 Доступні варіанти оздоблення: F - сталь, гарячеоцинкована. відповідно до PN-EN ISO 1461:2011 E - нержавіюча сталь (SS), клас 1.4301 (AISI304) Додаткова інформація Для монтажу використовуйте прямі з'єднувачі LKM... та комплект гвинтів СГКМ6x14